建築設計カウンセリング
① 建築設計
8年間留学・一年間日本企業勤務した経営者は、熱心満々な若いスタッフと一緒にその経験を活かして、ベトナム国内建築デザインを提供しています。
又、日本の建築設計会社から、30~40年前建設された古いマンション等の改装設計、住宅新築設計等を受託しています。設計以外、小規模建築施工、中規模建築施工管理なども行っています。
②...
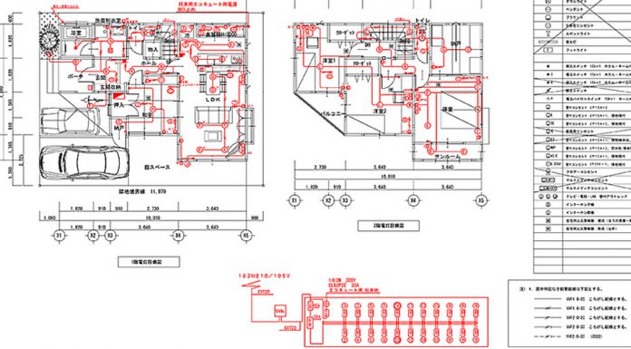
電気 空調 換気
家の建築は、常に電気、水、エアコンシステムに対応しています。 高層ビル、高級マンション、病院、ホテル向けの電気、水道、空調の建築図面やシステムのコンサルティングと設計、製造における長年の経験を持つ。 、... DANACADは、日本の主要な電気企業とともに日本の顧客と協力しており、信頼されています。
日本のお客様のために構築されている作品の種類:
+ホテル、リゾート
+病院、オフィスビル、..
利用ソフト
+ CADWE’ll CAPE2004、 CADWE’ll CAPE2003
+ TFAS4、 TFAS 10、 TFAS 11
+ AUTOCAD, REVIT、GLOOBE、SOLIWORKS





