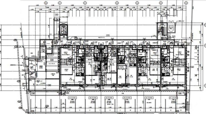
Tư vấn thiết kế
Một ngôi nhà đẹp, tiện nghi, đúng chuẩn nhà là mong muốn của bất cứ ai khi xây dựng tổ ấm của mình để...
Nhiệt điện nước điều hòa
Kiến trúc nhà cửa luôn đi với hệ thống điện, nước, điều hòa thông gió. Với nhiều năm kinh nghiệm trong công việc tư...
Bộ phận thiết kế gia công bản vẽ kết cấu chuyên triển khai bản vẽ cơ khí thiết bị khung thép các cấu kiện...
Với nhiều năm kinh nghiệm trong công việc gia công bản vẽ kiến trúc xây dựng, hệ thống điện cho các công trình nhà...
BIM là gì? Khi nói đến BIM, có thể hiểu nôm na như sau
- B là Building: công trình
- I là Information: thông tin,...












